Palacio de Justicia - Bahía Blanca
En el año 1520, la expedición de Magallanes da nota de los 'Bajos de arenas blancas', y durante el siglo XVII se hacen algunas observaciones del lugar, nombrándose como 'Costa de bajas, Río de los Sauces o Heyque Leuvú', hasta que en un mapa del año 1804 se utiliza la mención de 'Bahía Blanca'.
Su origen está impulsado por necesidades políticas y militares: proteger las costas patagónicas de las invasiones brasileñas y cercar el gran espacio que existía entre Sierra de la Ventana y el mar, para impedir el traslado de ganado que efectuaban los indios hacia Chile. El 28 de noviembre de 1823, el Gobernador Martín Rodríguez y su Ministro Bernardino Rivadavia tienen el propósito de crear un nuevo poblado al sur de la Provincia, en las orillas de la 'Bahía Blanca'. Al efecto, mandan una expedición al año siguiente, para levantar un fuerte en el lugar.
Luego de dos intentos frustrados en 1824 y 1827, el 11 de abril de 1828 se levanta un campamento militar llamado 'Fortaleza Argentina', y el puerto de 'la Esperanza'. No obstante la aprobación del gobierno, prevaleció desde sus orígenes el nombre de 'Bahía Blanca', debido a las salinas que revestían el suelo de las inmediaciones.

La ley 112 del 24 de octubre de 1856, lo incluye en el Departamento Judicial del Sud. Por Ley 388 del 27 de julio de 1863 es incluido -para jurisdicción criminal- en el Departamento Judicial de la Capital (junto con Patagones), quedando íntegramente incorporado a éste por ley 1319. Hasta que el 21 de mayo de 1902, por ley 2795, se crea el Departamento Judicial de Costa Sud, con asiento en Bahía Blanca.
El Palacio de Justicia de Bahía Blanca, se ubica sobre la calle Estomba Nº 34, frente a la plaza principal. Será proyectado y dirigido técnicamente por el Arq. Qüinke representando a la Dirección General de Arquitectura del Ministerio de Obras Públicas de la Provincia de Buenos Aires. En marzo de 1924 comienzan las obras contratando al constructor Justo José Querel.

El edificio, situado entre medianeras posee una planta baja y cinco pisos altos sobre la línea municipal. Actualmente conjuntamente con el Banco Nación y la Aduana consolidan una de las cuadras más destacadas por su valor patrimonial.El Palacio, construido entre medianeras posee cuatro patios de aire y luz, dispuestos simétricamente respecto a otro patio cubierto de mayores dimensiones.


Al desarrollarse entre medianeras, el gran desafío para el proyectista fue seguramente dar el aspecto de 'palacio' a un edificio de seis plantas. La fachada posee un sector central destacado (avant-front) conformado por un zócalo alto, compuesto por un basamento liso, un almohadillado puro, una cornisa quebrada, y un sector lineal que acompaña los arcos de medio punto, del primer piso. Sobre este zócalo se desarrolla un orden monumental doble con columnas jónicas, que sostiene a un amplio cornisón de remate con ménsulas y molduras curvas.


Todo este conjunto se remata con un nivel de ático, recurso utilizado desde el siglo XVI en Italia para los ejemplos palaciegos. Este sector alterna pilares con pilastras superpuestas en concordancia con el orden inferior anteriormente descripto y rematando en gigantescas palmetas que dibujan un particular y maravilloso perfil arquitectónico, cargando de dignidad a este ejemplo académico eclecticista de principios de siglo.
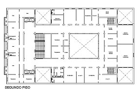
En la planta baja, un amplio hall de acceso comunica a través de puertas vaivén a otro hall general, donde se observan una espléndida escalera con iluminación cenital, y cuatro ascensores que conectan con los pisos superiores. La escalera comienza en un tramo, entre muros, y luego se divide en otros dos laterales, esquema que se repite en todos los pisos.Dos amplios pasillos a los lados de la escalera citada, conducen a un patio cubierto que absorbe los seis niveles. Este posee galerías perimetrales que se brindan a modo de vanos rectos en planta baja y tres niveles superiores, observándose la alternancia con arquería de medio punto en el cuarto piso, y un piso de remate con pilastras austeras unidas por tramos calados. Este patio es cubierto por una importante lucarna vidriada a cuatro aguas.



Cabe destacar como espacio de especial valor, una Sala de Audiencias de forma rectangular, con un cielorraso artesonado, dando lugar a la iluminación artificial, y con muros decorados alternando pilastras con motivos zoomorfos y guirnaldas.